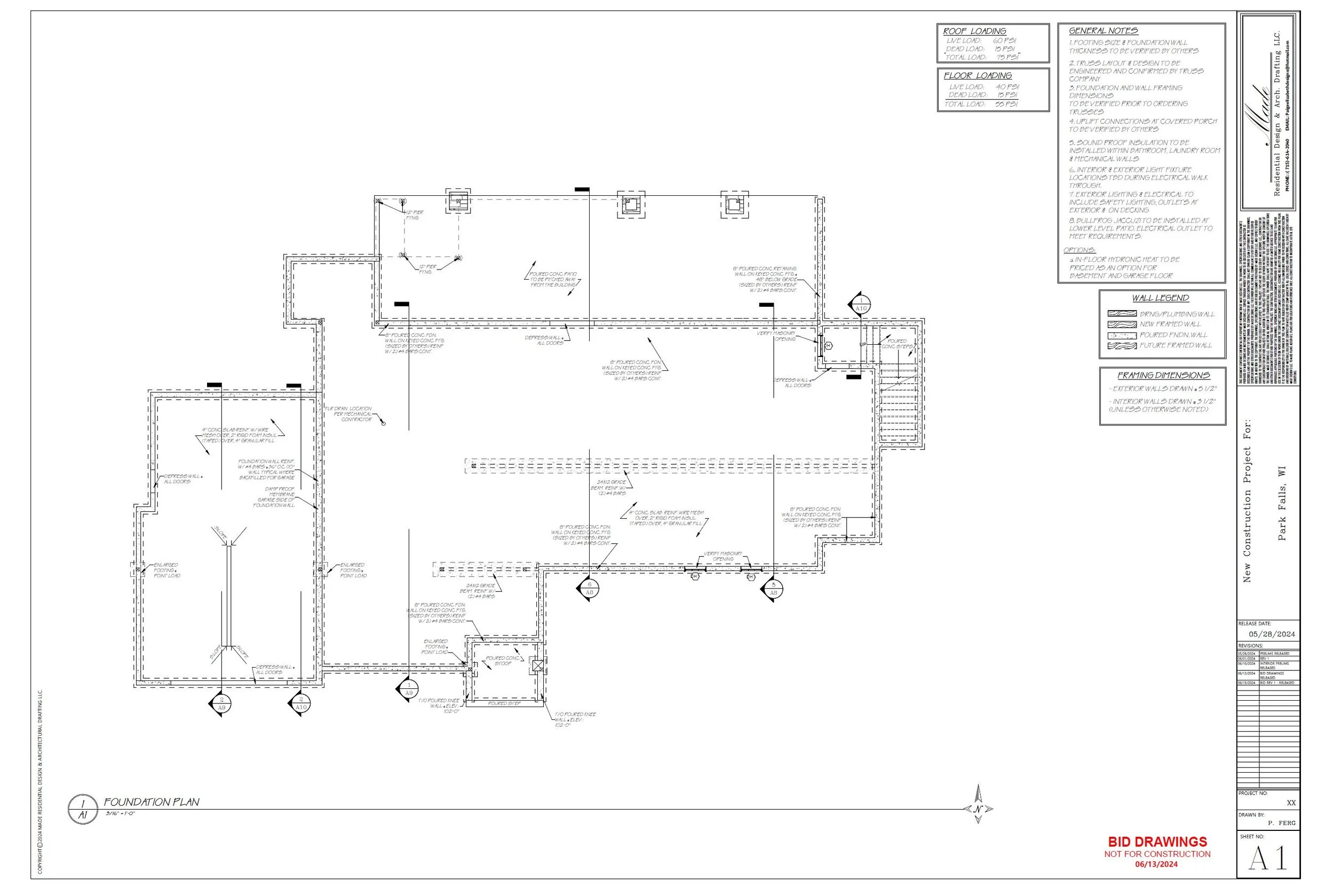
Park Falls - New Construction Home

This New Construction home located in Park Falls, WI is truly one of a kind with some beautiful features. The use of multiple materials on the exterior and the custom space planning of the interior make this home true to the owner and the owners needs. As most of our Clients are out of town, we were able to communicate and execute the perfect design from Schematic into Construction Documents through email and skype meetings. As this home has a variety of bearing heights for things such as windows and roof truss’, we developed multiple building section details to communicate with the bidding contractors. This home truly speaks to the phrase ‘the beauty is in the details’. Construction Documents include Site Plan, Foundation Plan, Floor Plans, Exterior Elevations, Interior Elevations, Building Section Details, Wall Section Details, Roof Plan, Door/ Window Schedules and much more!


Paige, thanks so much. I have connected with 2 of the builders I contacted, and will also try these names below. Thanks! I spoke with Chris this morning, and he could not have been more complimentary about the final plans you prepared. He said that his firm has a program that serves as a “checklist” for final residential drawings, and he ran your drawings through that program. He said your plans matched in every category, which he said is unusual. He said your plans were detailed, thorough and very well done, and should make the bid process easier for builders. These plans will also let the builders know that I am serious about building this home. So thanks again!
— John
Previous
Previous

Three Lakes, WI - New Construction Home

Next
Next

Manitowish Waters - Complete Cabin Remodel