Home Remodel Project - St. Germain

Sometimes the smallest Additions, paired with a touch of Remodeling, give the biggest face-lift to your home. For this Remodel Project, located in St. Germain, WI, we collaborated with our client and developed a full set of Construction Documents to bring their Home goals to life. Since the client’s existing home was already located on a sloping grade, we were able to add an addition that also included a Walk-Out Basement. Throughout this process, we were also able to keep some of the existing home untouched!

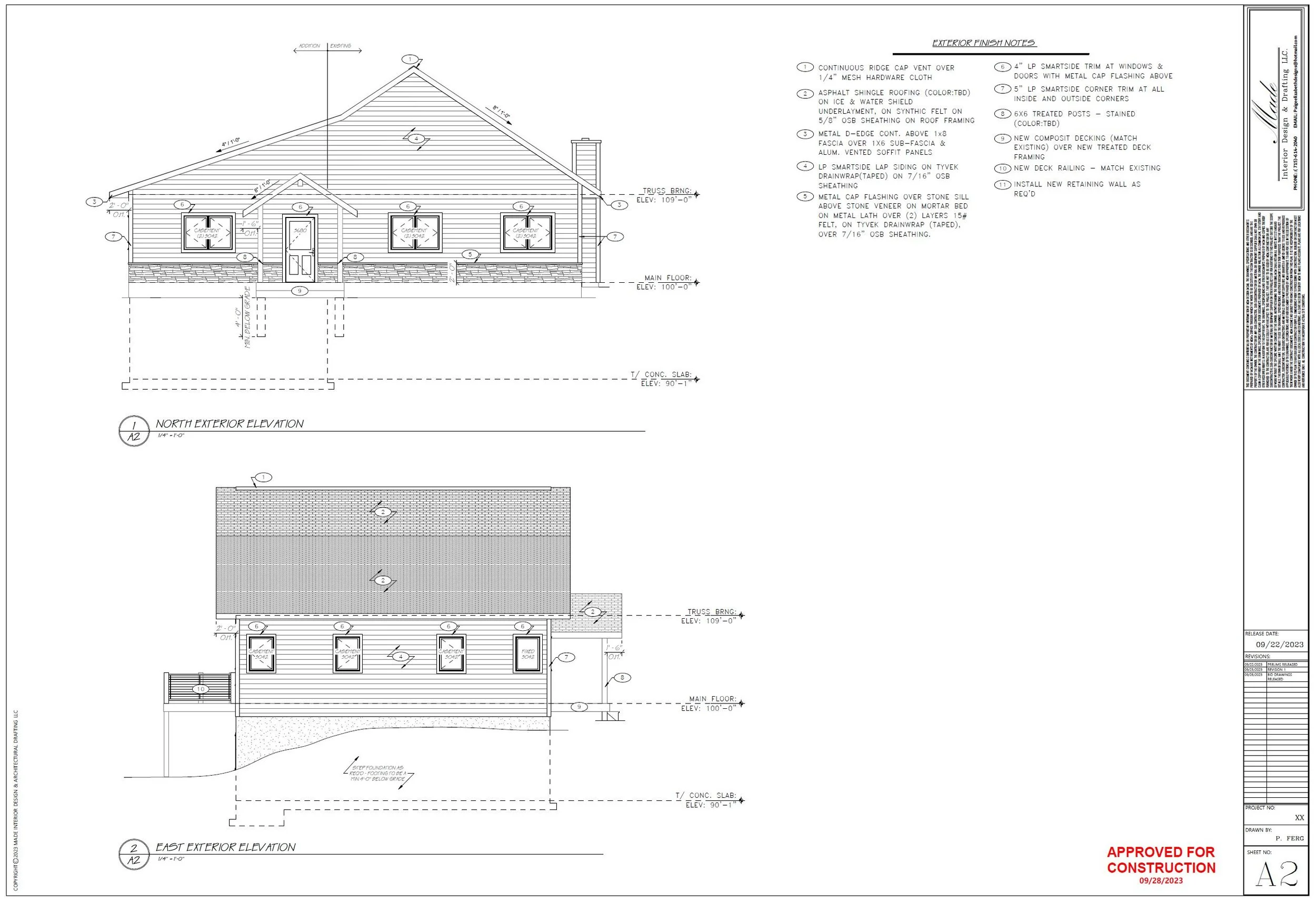
Detailed Construction Documents included: Demolition Plans of the Existing Floor Plans and Exterior Elevations, New Construction Floor Plans, Foundation Plans, Building Section Details & Exterior Elevations.

Check out the transformation BELOW!

Addition & Remodel Project

Most recently we have seen Clients interested in Additions and/ or Remodeling their existing homes to save cost considering the hike in building materials over the past couple years. We can certainly understand that concept & we enjoy our facelift projects just as much as our New Construction Projects , the transformations are awesome to see!

Previous
Previous

Manitowish Waters - New Construction Project

Next
Next

New Construction Project - Little Rice Lake